Start project
2009
Status
Opgeleverd mei 2012
Oppervlakte (BVO):
Ca. 6000m2
Plaats
Alkmaar, Noord-Holland
Programma
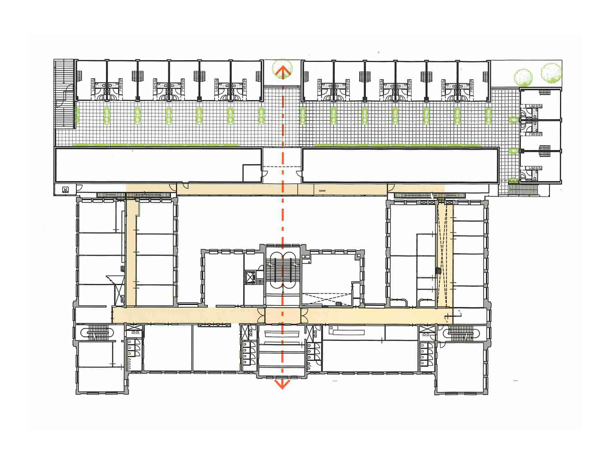
Centrum voor kunst & erfgoed + 19 starterswoningen
Opdrachtgever
Gemeente Alkmaar
Project team
Mark Feron
CKE Alkmaar
Een chirurgische ingreep in een stedelijk weefsel herstelt de monumentale ambachtsschool als karakteristieke hoofdentree voor het Centrum voor Kunst & Erfgoed.
Starterswoningen geven het gesloten archiefgebouw een gezicht naar de stad als een eigentijdse weerspiegeling van de historische baksteenarchitectuur.






