Start project
november 2019
Status
Opgeleverd oktober 2020
Oppervlakte (BVO):
Ca. 1800m2
Plaats
Heerlen, Limburg
Programma
Onderwijs
Opdrachtgever
INNOVO
Project team
Mark Feron, Floris Coolen
Betrokken partijen
Graus bouw, GBB, Haltronic, Werf & Nass
KC de Horizon
Het schoolgebouw vormt gedurende de ontwikkelingsjaren van het schoolkind een belangrijk decor in de ontwikkeling van gevoel voor ruimte, materialiteit en kleurgebruik. Het jonge kind is van nature nieuwsgierig en zal het schoolgebouw op allerlei manieren willen ontdekken.
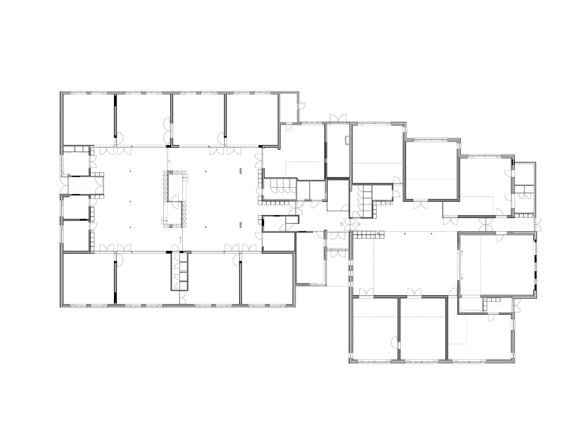
Het gebouw van de school werd in 1988 gebouwd als school voor speciaal onderwijs. Vanwege de afwijkende groepsgrootte in het speciaal onderwijs (8 – 12 leerlingen per groep) kent het gebouw relatief kleine klaslokalen (42m2). In 2001 nam basisschool De Horizon het gebouw in gebruik, waarbij het gebouw meteen werd uitgebreid.
De Horizon is geen school voor speciaal onderwijs en dat maakt de lokalen in het oorspronkelijk deel te klein. Door de gesloten structuur van het gebouw in het hart is er weinig transparantie en doorzicht. Conceptueel vraagt het onderwijsconcept openheid, transparantie en verwerkingsgebieden zoals leerpleinen.
AAA heeft een moderne leeromgeving ontworpen door het gehele middengebied, twee gangen en inpandige (vergader)ruimten rigoureus open te breken. Hierdoor ontstaat een open middenzone van 14*23m met een centraal geplaatst meubel als ‘nestelzone’ met boeken waar de leerling zich even kan terugtrekken. Dit kleurige meubel deelt ook de open ruimte in overzichtelijke en bruikbare leerpleinen voor midden- en bovenbouw, en dient tegelijkertijd als podium bij voorstellingen en presentaties. Door de lokalen uit te breiden en te voorzien van glazen binnenwanden naar het leerplein ontstaat een flexibele en overzichtelijke leeromgeving. Accenten in de vloerafwerking versterken het ruimtelijk gevoel en maken ‘plekken’ voor alle soorten gebruik.
De gevels worden deels met houten latten bekleed en deels wit gekeimd. De lattengevel van Siberisch lariks geeft de school een gevoel van materialiteit en tactiliteit. Doordat de latten langzaam aan zullen vergrijzen wordt de zintuiglijke gewaarwording van de fysieke schoolomgeving verder gestimuleerd. Wij noemen dit de tactiele leeromgeving.
Zo transformeert de ‘grijze’ MBI school uit de jaren 80 naar een tijdloos en warm schoolgebouw waar jong en oud graag naar toe gaat.






