Plaats
Klimmen, Limburg
Start project
November 2020
Status
Opgeleverd maart 2025
Oppervlakte (BVO):
Ca. 2545m2
Programma
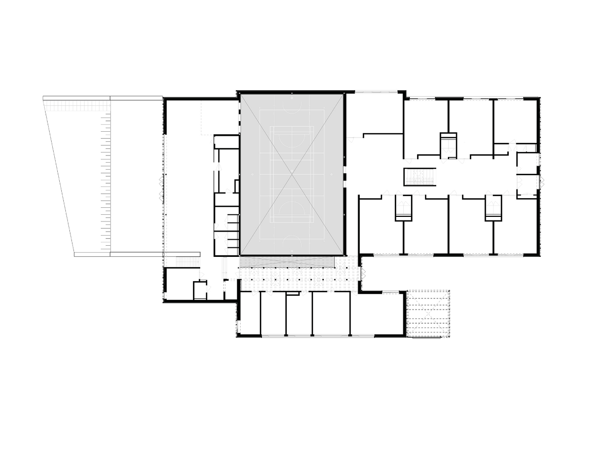
Kindcentrum, Sporthal, Bibliotheek, diverse vereniging en diverse maatschappelijke functies
Opdrachtgever
Gemeente Voerendaal
Project team
Mark Feron, Floris Colen
Betrokken partijen
Werf & Nass, WSP, Kragten, Baljon, Koppen Bouw
OCK Klimmen
Architectenzaak ontwierp de Open Club Klimmen (OCK) als een toekomstbestendig, multifunctioneel gebouw waar onderwijs, kinderopvang, zorg, sport en cultuur samenkomen. Multifunctioneel en duurzaam gemeenschapsgebouw in het Limburgse landschap. Het ontwerp versterkt de sociale cohesie in Klimmen en creëert een centrale plek waar inwoners elkaar ontmoeten en samenwerken. De OCK is zorgvuldig ingebed in het karakteristieke Zuid-Limburgse landschap. De sterke zichtlijn tussen de historische kerktoren en het nieuwe hart van de OCK verankert het gebouw in zijn omgeving. Door de natuurlijke hoogteverschillen slim te benutten en biodiversiteit te behouden, ontstaat een gebouw dat naadloos aansluit op zijn groene context.
Het ontwerp stimuleert ontmoetingen door zones en functies in elkaar te laten overlopen. Vergelijkbaar met een modern dorpsplein biedt de OCK gedeelde ruimtes die efficiënt kunnen worden benut door de verschillende gebruikers. Deze functionaliteit bevordert duurzaam ruimtegebruik en versterkt de leefbaarheid van Klimmen.
Het gebouw is ontworpen met oog voor energiezuinigheid, robuuste materialen en een lange levensduur. Tijdens het ontwerpproces is rekening gehouden met lokale uitdagingen, zoals de aanwezigheid van harde Kunrader steenlagen in de bodem. De integrale aanpak zorgt voor een duurzaam gebouw dat klaar is voor toekomstig gebruik.
De OCK kwam voort uit een sterk burgerinitiatief en wordt mede ondersteund door IBA Parkstad, Provincie Limburg en Gemeente Voerendaal. Het resultaat is een modern stuk maatschappelijk vastgoed dat de kern van Klimmen versterkt en de gemeenschap een nieuwe centrale ontmoetingsplek biedt.







