Plaats
Heerlen, Limburg
Start project
Maart 2021
Status
Opgeleverd november 2023
Oppervlakte (BVO):
Ca. 3920m2
Energielabel
A
Toegangkelijkheid
BAT 4 – zorggeschikt
De woonstandaard
PMC 6
Programma
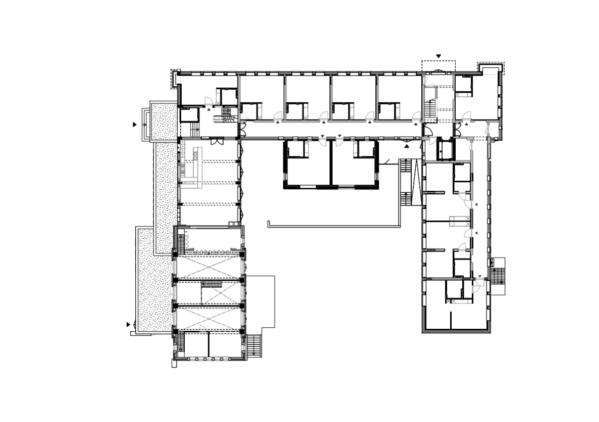
30 zorgkamers, twee huiskamers met keuken, terras, binnenplaats en kantoorfunctie
Opdrachtgever
Lindeproject en Bergweide
Project team
Mark Feron, Bram Orbons
Betrokken partijen
GBB, Bureau Verbeek, Carbon Visuals, K+, Koppenbouw, Werf&Nass
ZC Clarahuys Heerlen
Architectenzaak realiseerde de transformatie van Clarahuys, een voormalig schoolgebouw uit 1935 aan de Gasthuisstraat in Heerlen, tot een eigentijdse woon-zorgvoorziening. Het gemeentelijk monument, oorspronkelijk ontworpen door architect Jos. Seelen, is zorgvuldig gerestaureerd, uitgebreid en herbestemd met respect voor het historische karakter en oog voor toekomstbestendig gebruik. Het project omvat de transformatie van circa 3.920 m² BVO tot een moderne zorgomgeving met 24-uurs zorg. In de bestaande bouw zijn 24 zorgkamers gerealiseerd. Op het binnenterrein is een nieuwe, eigentijdse vleugel toegevoegd met 6 extra zorgkamers. Daarnaast zijn gemeenschappelijke functies zoals een huiskamer en restaurant met terras geïntegreerd, evenals kantoor- en maatschappelijke ruimtes.
Bij de transformatie van Clarahuys stond een integraal ontwerp centraal waarin routing, overzicht en onderlinge verbindingen optimaal zijn vormgegeven. De nieuwbouw is bewust losgekoppeld van het monumentale hoofdgebouw, waardoor de toevoeging reversibel is en het oorspronkelijke karakter behouden blijft. De eigentijdse architectuur sluit harmonieus aan op de historische context zonder deze te imiteren.
Binnen het bestaande gebouw is een nieuwe entree met lift toegevoegd, zodat het volledige complex voldoet aan de Integrale Toegankelijkheidsstandaard (ITS). Het duurzame gebouwconcept bestaat uit slimme energieoplossingen en een zonnedak dat voorziet in de energiebehoefte van installaties en ventilatiesystemen. Hiermee is Clarahuys een toekomstbestendige zorgvoorziening in Heerlen.
Met de transformatie van Clarahuys toont Architectenzaak haar expertise in monumentale herbestemming en transformatieprojecten. Het project laat zien hoe bestaande gebouwen met zorgvuldige architectuur kunnen worden getransformeerd tot functionele, duurzame en mensgerichte omgevingen.






